Каталог продукції

Залізобетонні вироби

ЗБВ для дорожнього будівництва

Енергозалізобетон

Тротуарна плитка

Елементи дизайну

Сипучі матеріали

Чавунне лиття

Спец. цементи

Дорожня огорожа

Фанера

Плитка тактильна

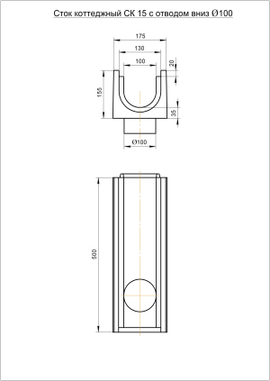
Лоток бетонний ЛВ 10.17.15 з відводом вниз

Характеристики

Довжина мм.: 500
Ширина мм.: 175
Висота мм.: 155
Лоток бетонний ЛВ 10.17.15 з відводом вниз Лоток бетонний ЛВ 10.17.15 з відводом вниз

Опис Лоток бетонний ЛВ 10.17.15 з відводом вниз

Лоток бетонний ЛВ 10.17.15 з відводом вниз – це елемент водовідвідної системи, призначений для ефективного збору та відведення поверхневих вод із можливістю прямого підключення до дренажної або каналізаційної системи. Виготовлений із високоміцного бетону, він відзначається стійкістю до механічних навантажень, впливу вологи та хімічних речовин. Завдяки нижньому відводу, лоток забезпечує швидке та зручне водовідведення, що робить його ідеальним рішенням для використання в приватному будівництві, на автостоянках, у пішохідних зонах і комерційних об'єктах. Для додаткового захисту може комплектуватися водоприймальними решітками.

У нас ви можете купити Лоток бетонний ЛВ 10.17.15 з відводом вниз за вигідними цінами, на обсяг надаємо додаткову знижку. Компанія Рістейл здійснює доставку по всій території України.

Зателефонуйте нам (099) 621-56-63, (098) 525-64-14, або заповніть форму.

Консультація по телефону

Please publish modules in offcanvas position.